works

施工実績

西尾市A様邸|築55年を再生。動線改善で老後も安心な断熱リノベーション

西尾市A様邸|築55年を再生。動線改善で老後も安心な断熱リノベーション
西尾市A様邸|築55年を再生。動線改善で老後も安心な断熱リノベーション
西尾市A様邸|築55年を再生。動線改善で老後も安心な断熱リノベーション
西尾市A様邸|築55年を再生。動線改善で老後も安心な断熱リノベーション
西尾市A様邸|築55年を再生。動線改善で老後も安心な断熱リノベーション
西尾市A様邸|築55年を再生。動線改善で老後も安心な断熱リノベーション
西尾市A様邸|築55年を再生。動線改善で老後も安心な断熱リノベーション
西尾市A様邸|築55年を再生。動線改善で老後も安心な断熱リノベーション
西尾市A様邸|築55年を再生。動線改善で老後も安心な断熱リノベーション
西尾市A様邸|築55年を再生。動線改善で老後も安心な断熱リノベーション
西尾市A様邸|築55年を再生。動線改善で老後も安心な断熱リノベーション
西尾市A様邸|築55年を再生。動線改善で老後も安心な断熱リノベーション
西尾市A様邸|築55年を再生。動線改善で老後も安心な断熱リノベーション
西尾市A様邸|築55年を再生。動線改善で老後も安心な断熱リノベーション
西尾市A様邸|築55年を再生。動線改善で老後も安心な断熱リノベーション
西尾市A様邸|築55年を再生。動線改善で老後も安心な断熱リノベーション
西尾市A様邸|築55年を再生。動線改善で老後も安心な断熱リノベーション
西尾市A様邸|築55年を再生。動線改善で老後も安心な断熱リノベーション
西尾市A様邸|築55年を再生。動線改善で老後も安心な断熱リノベーション
西尾市A様邸|築55年を再生。動線改善で老後も安心な断熱リノベーション
西尾市A様邸|築55年を再生。動線改善で老後も安心な断熱リノベーション
西尾市A様邸|築55年を再生。動線改善で老後も安心な断熱リノベーション
西尾市A様邸|築55年を再生。動線改善で老後も安心な断熱リノベーション
西尾市A様邸|築55年を再生。動線改善で老後も安心な断熱リノベーション
西尾市A様邸|築55年を再生。動線改善で老後も安心な断熱リノベーション
西尾市A様邸|築55年を再生。動線改善で老後も安心な断熱リノベーション
西尾市A様邸|築55年を再生。動線改善で老後も安心な断熱リノベーション
西尾市A様邸|築55年を再生。動線改善で老後も安心な断熱リノベーション
西尾市A様邸|築55年を再生。動線改善で老後も安心な断熱リノベーション
西尾市A様邸|築55年を再生。動線改善で老後も安心な断熱リノベーション
西尾市A様邸|築55年を再生。動線改善で老後も安心な断熱リノベーション
西尾市A様邸|築55年を再生。動線改善で老後も安心な断熱リノベーション
施工内容
LDK・洗面脱衣室・浴室・トイレ・洋室・和室・耐震・断熱・バリアフリー化・造作家具
お客様名
A様
施工エリア
西尾市
施工費用
約1600万円
施工期間
約2か月

築55年の木造住宅を再生しました。
以前は「夏は暑く、冬は寒い」という断熱性能への不安に加え、耐震性についても心配を抱えておられました。
また、キッチンと居間が離れていたり、トイレが離れにしかなかったりと生活動線が悪く、収納不足から置き型家具が増え、部屋が狭く感じられることもお悩みでした。

「この先もずっと快適に暮らしたい」
その想いを受け、単なる間取り変更ではなく、住まいの土台から整えるリノベーションを行いました。

まず建物をほぼスケルトン状態まで解体し、構造体を確認。
壁・天井・床に新たに断熱材を充填するとともに、必要な耐震補強を施し、目に見えない部分から住まいの性能を根本的に見直しました。
これにより、「夏は暑く冬は寒い」という長年の悩みを改善すると同時に、将来への安心も確保しています。

間取りも大きく見直しました。
キッチンを移動し、広々としたLDKへ変更。
不要となった勝手口スペースにはトイレを新設し、その隣を施主様の寝室にしました。これにより、夜間のトイレ移動もスムーズで安心です。
さらに廊下の一部をLDKに取り込むことで、洗面脱衣室や浴室へダイレクトに移動できる動線を確保。以前の居室はLDK直結の収納ルームへと生まれ変わり、収納不足も一気に解消しました。

和室との段差解消、引戸の採用、間口の拡張といったバリアフリー化も徹底。
扉を開放すればLDKの暖気が水まわりまで届くため、冬場のヒートショック対策にも配慮した設計です。

築55年という年月を重ねた住まいは、間取りだけでなく、断熱性・耐震性といった性能面も含めて再構築することで、これからの暮らしにふさわしい住まいへと生まれ変わりました。

“古い家を直す”のではなく、“これからも安心して住み続けられる家へ育て直す”。
そんな再生リノベーションの一例です。

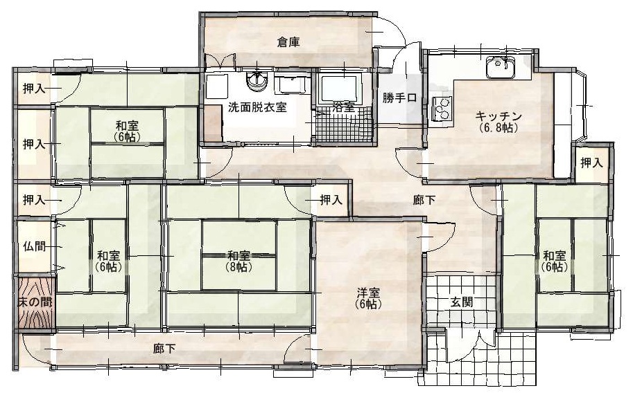
施工前

平面図

  • 【施工前】

  • 【施工後】
    ※斜線部分は既設のまま

施工後

  • 以前の洋室と和室、廊下の一部を一体化して広々としたLDKにリノベーションしました。
    床・壁・天井に断熱材を充填、窓を断熱窓(三協アルミ マディオJ)へ交換して断熱性能を向上させました。
    フローリングはイクタ「銘木フロア シルク2P(ナラ樫)」です。
    天井はライトグレーの塗り調クロス(サンゲツ SP2509)、壁は高級感とぬくもりが感じられるモカグレーの石目調クロス(サンゲツ SP2545)で仕上げました。
    ハイサイド窓がある壁はアクセントでトラバーチン柄のタイル調のクロス(サンゲツ FE76616)にしました。

  • キッチンは、憧れの対面式へ変更。筋交いが入っていて抜けない壁に耐力合板を貼り、さらに強い耐力壁に仕上げました。
    キッチン前の腰壁を少し高めに作り、リビングダイニング側から手元が見えないようにしました。
    カウンター下には造作家具を設置。上部をオープンにして、下部は3セットの開き戸付き収納になっています。中は高さを調整できる可動棚仕様です。淡い色を基調としたお部屋の中に、モルタル調の濃いグレーを入れて空間を引き締めました。

  • システムキッチンはTOTO ミッテ(アカシアキャメル)を採用しました。ワークトップとシンクはステンレスです。
    以前のガスコンロから安全面を考慮したIHクッキングヒーターへ交換。家事がラクになるよう、今までは無かった食器洗い乾燥機を採用しました。
    以前の開き戸の収納から引き出し収納へ交換。取っ手は握りやすいラウンド取っ手なので、引き出すのもラクラク。使い勝手が良くなり、収納力もアップしました。

  • キッチンの背面は、食器や家電が収納でき、パントリーとしても使える大容量収納です。
    天井まで届きそうな建具は、LIXIL ラシッサS クローゼットドア引戸(連動タイプ、プレシャスホワイト)です。来客時には扉を閉めてスッキリ。
    中の収納棚は、南海プライウッドのキッチン収納 フリモを採用しました。
    右側の棚には家電収納のための工夫が施されています。蒸気が出る家電のためのスライドテーブルや、オーブン・電子レンジなどの重量のある家電に対応できる棚受が設置されています。
    その他の棚は便利な可動式。収納する物の高さを合わせることができます。

  • キッチン横の掃き出し窓には、天井からプラチナグレー色のバーチカルブラインド(TOSO コルト)を取り付けました。縦空間を強調し、光の入る量や角度を調整できます。
    キッチン側はフローリングではなく、明るい石目柄のフロアタイル(サンゲツ IS-2602)で貼り分けました。フロアタイルは耐久性や耐水性に優れているので、水まわりの床にピッタリの床材です。

  • LDKの出入り口です。扉はLIXIL ラシッサSのアウトセット片引戸(クリアペール)です。
    扉の上部にはチェッカーガラスを採用し、採光と人の気配が感じられるようにしました。
    壁には飾り棚を設置しました。お気に入りのものを飾って、自分好みの空間を作ることができます。
    亡きご主人様が生前に作られた湯呑や茶碗、お写真などを飾って、『いつでもご主人様を感じられる空間にしたい』と話してくださいました。

  • LDKと隣接している仏間を仕切る建具です。
    YKK AP ファミットC(クロスタイプ、片引戸4枚建)を採用しました。
    クロスタイプは、その名の通りクロスを貼って仕上げます。LDKの壁と同じモカグレーの石目調クロス(サンゲツ SP2545)を貼り、雰囲気の統一ができました。

  • LDKと仏間を仕切る建具を開けると、まるで2部屋が繋がっているかのようです。
    施主様の『法要を行えるようにしたい』というご希望を実現しました。
    建具を天井までの高さにし、あえて4枚建の扉にすることで、扉1枚ずつをスリムにしました。新しく作った薄壁に扉がピッタリと収まり、広い開口部を確保しました。

  • 仏間側の建具はLDK側とは違う、ベーシックな和紙調のクロス(サンゲツ FE76532)で仕上げました。表裏別々のクロスを貼ることが可能なので、空間の雰囲気を損なうことがありません。
    傷んでいた畳も新調し、イ草の匂いと色に癒されます。

  • 洗面脱衣室をランドリースペースとして使えるようにリノベーションしました。
    天井には、森田アルミ工業の天井付け物干し「kacu」を採用。
    洗面はオーダーメイドタイプのアイカ スタイリッシュカウンター(アンダーボウルタイプ)で、洗濯物が畳めるようにカウンターを長くしました。『洗う・干す・畳む』がこの場所で完結。
    収納は可能棚を使ったオープン収納です。
    内装の仕上げは、天井とLDKが同じクロスで空間の繋がりを意識しています。壁は白いタイル・レンガ調(サンゲツ RE55678)、アクセントにグリーンの石目調(シンコール SLP260)のクロスを採用。床は柔らかく、耐水性のあるモルタル柄のクッションフロア(サンゲツ HM-12002)です。

  • タイル貼りの壁と床で寒かった在来浴室を断熱性が高く、掃除のしやすいユニットバスへ交換しました。
    採用したのはTOTOサザナ HTシリーズ Sタイプ 1616(1坪サイズ)です。ベーシスホワイトのパネルにファセットベージュでアクセントを。
    天井には浴室換気暖房乾燥機の「三乾王」を設置。暖房・換気・衣類乾燥・涼風の1台4役の優れもの!
    洗面脱衣室のランドリースペースだけでなく、浴室にも洗濯物を干すことができます。
    さらに、冬場のヒートショック対策にも効果的です。

  • 浴室の出入り口は、以前の折戸から「スッキリドア3枚引戸」へ交換。軽い力でスムーズに開閉でき、広い開口部を確保できます。
    バリアフリー設計にも配慮されているので、車椅子での通行もラクに行えます。介護にもおすすめです。

  • 以前の勝手口にトイレを新設しました。
    トイレはTOTO洋風便器(ピュアレストQR)にウォシュレット(アプリコットF3A)の組み合わせ。節水型で掃除がしやすいトイレです。
    手洗器と収納、カウンターがセットになった、TOTO コンフォートシリーズを採用しました。紙巻器は二連なので、予備のトイレットペーパーをセット出来て便利です。
    I型の手すりも設置して、「座る・立つ」の動作をしっかりサポートします。
    内装は、天井と壁を抗菌や撥水などの機能があるクロス(シンコール SLP365)、床は耐水性に優れたグリーン系のフレンチヘリンボーン状のタイル柄クッションフロアで仕上げました。

  • トイレに一番近い、以前のキッチンを施主様の寝室にしました。
    単板ガラスの窓は、断熱窓(三協アルミ マディオJ)に交換したり、内窓(三協アルミ プラメイクE2)を取り付けたりして断熱性アップしました。カーテンはレース(サンゲツ OP3183)とドレープ(サンゲツ OP3006)のオーダーカーテンです。
    床にはキズや汚れに強い、イクタ パワフルフロア(フレッシュオーク)を上張りしました。
    天井・壁は石目調のクロス(サンゲツ SP9740)、アクセントはナチュラル・ボタニカル調で、さわやかに飛び交うリーフ柄(サンゲツ FE76810)で仕上げました。